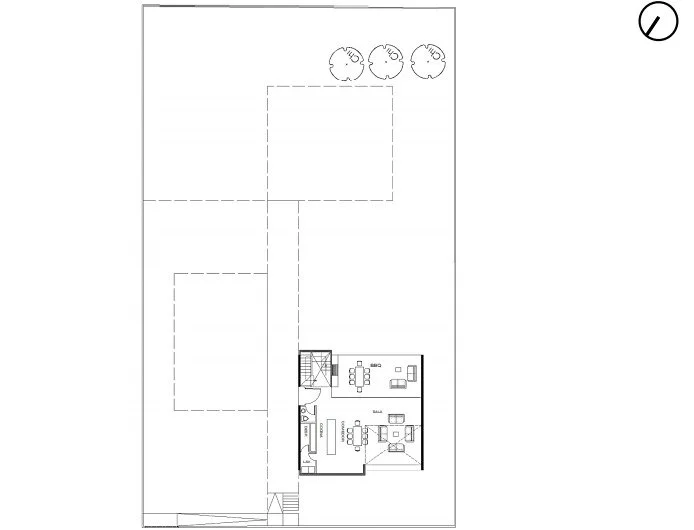
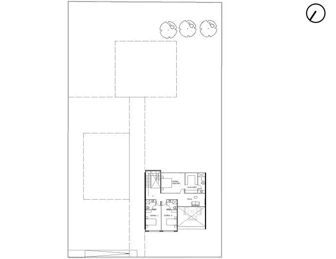
Con una arquitectura moderna, simple y materiales puros, logramos un resultado espectacular. Espacios a doble altura y grandes ventanales nos ayudan a tener una relación entre el espacio interior y exterior. El clima cálido fue una determinante para el diseño de estas casas, ya que nos permitió tener zonas sociales que se conectan a espacios abiertos. 

El proceso...

El cliente estaba interesado en realizar un proyecto inmobiliario para tres casas aisladas. Por lo tanto, realizamos varias reuniones para determinar el área de construcción y la distribución general del interior de las viviendas.

Anterior
Anterior

Proyecto en Tumbaco

Siguiente
Siguiente

Proyecto La Merced