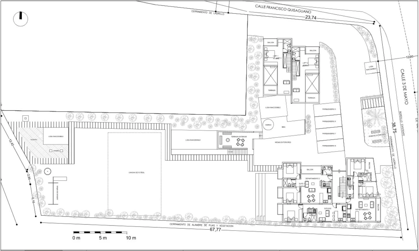
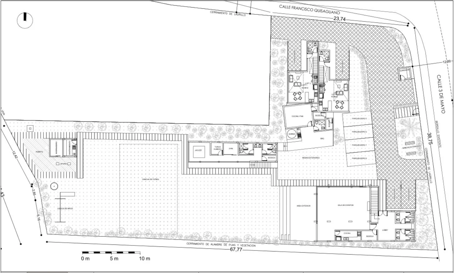
El proyecto en La Merced nace del sueño de ocupar una hermosa propiedad a las afueras de Quito. Las clientes buscaban una arquitectura tipo industrial con materiales puros como el ladrillo, hormigón y las vigas metálicas vistas. Los ángulos rectos y una arquitectura moderna son lo que le dan carácter a este diseño. 

El proceso...

A través de varias reuniones con las clientes y constante intercambio de información, logramos un proyecto muy funcional de acuerdo a sus necesidades. El proyecto se construirá en etapas por lo que era escencial que todas las zonas puedan funcionar independientemente.

El inicio...

Desde que llegamos a la propiedad, vimos todo el potencial que tiene el terreno gracias a su ubicación, clima y vistas de la naturaleza.

Anterior
Anterior

Proyecto Puembo