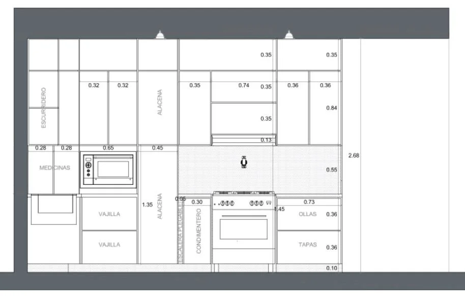
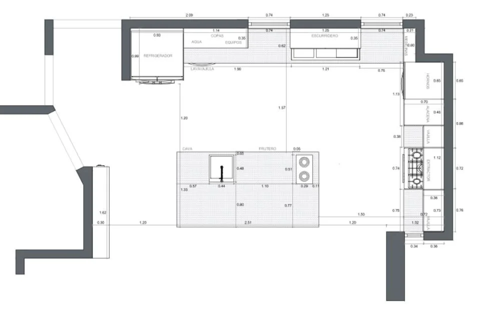
Esta familia buscaba un diseño funcional, ordenado y elegante. Es por esto que utilizamos colores neutros en tonalidades gris y blanco para generar un diseño muy atemporal. Finalmente incorporamos dos aperturas al exterior para aprovechar la vista del proyecto que se puede apreciar desde la isla central. 

El diseño...

Tuvimos en consideración todos los aspectos funcionales para que el momento de cocinar sea fluido y sin interrupciones.

Anterior
Anterior

Proyecto Beauty Lounge

Siguiente
Siguiente

Proyecto en Quito